Omakotitalo 4h+k+kph+erill.wc+sauna+terassi+piha
Pakaantie 48, Pakaa, Orimattila
Vuokra
850 € / kk
Koko
100 m² / 200 m²
Vuosi
1961
Idyllinen kokonaisuus Orimattilan keskustan kupeesta!
Asuntohakemuksen kohteesta pääset täyttämään osoitteessa https://vuokra-nl.formstack.com/forms/rental_application
Olemme hakemusten perusteella yhteydessä esittelystä. Hakemus ei ole sitova.
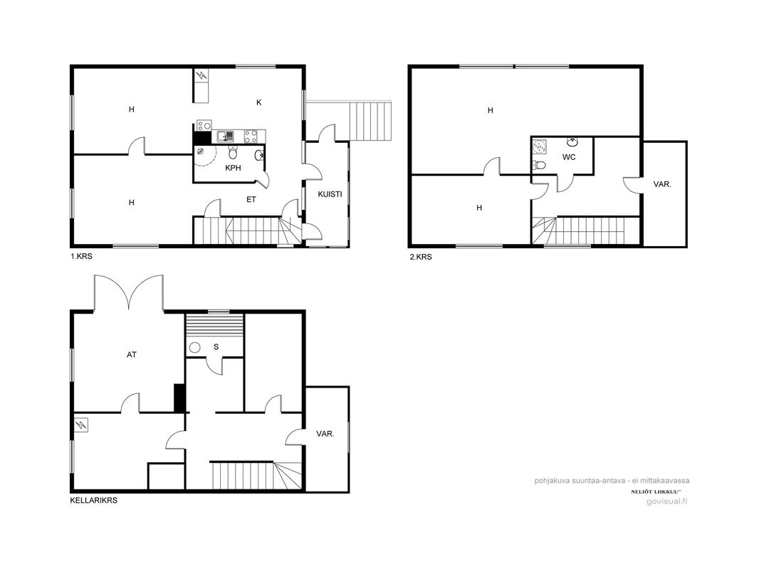
Vuokrattavana on viehättävä ja ajanhenkeä kunnioittaen kunnostettu kolmikerroksinen kokonaisuus, joka sijaitsee noin kilometrin päässä Orimattilan keskustasta. Tämä kodikas ja monipuolinen koti tarjoaa runsaasti tilaa sekä mukavuutta arkeen.
Lasiverannalta on käynti sekä keskikerrokseen että yläkertaan – kummallakin kerroksella on oma sisäänkäyntinsä, mikä lisää asumisen joustavuutta ja mahdollistaa esimerkiksi erillisten työ- tai oleskelutilojen käytön.
Ylimmässä kerroksessa sijaitsee kaksi rauhallista makuuhuonetta sekä erillinen wc. Keskikerroksessa on hyvin varusteltu keittiö, valoisa olohuone ja yksi makuuhuone. Alakerrassa taas pääsee puolestaan nauttimaan puulämmitteisen kiukaan pehmeistä löylyistä. Lisäksi alakerrasta löytyy varastotilaa, talon lämmitysjärjestelmät sekä vanha autotalli, joka ei ole enää käytössä, mutta sopii mainiosti esimerkiksi verstaaksi tai harrastetilaksi.
Valtava piha tarjoaa mukavaa aikaa oleskeluun aikaisin keväästä pitkälle syksyyn. Piharakennus ei vuokralaisen käytössä. Lemmikit sallittu.
Tämä kokonaisuus tarjoaa maaseudun tunnelmaa ja rauhaa lähellä palveluja – tervetuloa tutustumaan!
Vähintään vuoden sopimus. Vuokralainen ottaa laajan kotivakuutuksen vastuuvakuutuksella ja tekee sähkösopimuksen. Yhden kuukauden vuokravakuus. Luottotiedot tarkistetaan.
Öljylämmitys. Vuokralainen vastaa öljysäiliön täytöstä. Edelliset asukkaat kuluttivat n. 1500l /vuosi.
Vesi kulutuksen mukaan, oma sopimus. Vuokralainen vastaa pihanhuollosta.
Tervetuloa esittelyyn ihastumaan!
Kohdetta välittää:
Tiia Rothsten
vuokravälittäjä
0451382930
NELIÖT LIIKKUU LKV
| Kohdenumero | 21132915 |
|---|---|
| Sijainti | Pakaantie 48, 16300 Orimattila |
| Huoneistoselitelmä | 4h+k+kph+erill.wc+sauna+terassi+piha |
| Huoneita | 4 h |
| Tyyppi | Omakotitalo (kiinteistö, vuokranantaja) |
| Asuintilojen pinta-ala | 100 m² |
| Pinta-alojen lisätiedot | Asuinneliöt Ylin kerros 40m2 Keskikerros 60m2 Alimmassa kerroksessa: kylmävarasto, puuliiteri, sauna, pannuhuone, vanha autotalli ei käytössä, sopii esim. verstaskäyttöön tms |
| Vapautuminen | heti |
| Kohteen kunto | Tyydyttävä |
| Energialuokka | Ei lain edellyttämää energiatodistusta |
| Rakennusvuosi | 1961 |
| Käyttöönottovuosi | 1961 |
| Kyseessä alivuokraus | Ei |
| Kyseessä jälleenvuokraus | Ei |
| Vakuus | Yhden kuukauden vuokraa vastaava summa. |
| Vuokrattu | Ei |
|---|---|
| Vuokra | 850 € / kk |
| Lämmitysmuodot |
|
|---|---|
| Oma sauna | Kyllä |
| Lemmikit sallittu | Kyllä |
| Kalustettu | Ei |
|---|---|
| Muut säilytystilat |
|
| Rakennusmateriaalit | |
|---|---|
| Käytetyt rakennusmateriaalit |
|
| Keittiö | |
|---|---|
| Keittiön muu varustelu |
|
| Liesi |
|
| Jääkaappi ja pakastin |
|
| Kylpyhuone | |
|---|---|
| Kylpyhuoneen varustelu |
|
| Sauna | |
|---|---|
| Kiuas |
|
| Nimi | Rothsten Tiia |
|---|---|
| Sähköposti | |
| Puhelin | 0451382930 |
| Yrityksen nimi | Neliöt Liikkuu LKV Oy Ab |
| Toimiston nimi | Neliöt Liikkuu LKV Oy Ab |
| Yrityksen nimi | Neliöt Liikkuu LKV Oy Ab |
|---|---|
| Toimiston nimi | Neliöt Liikkuu LKV Oy Ab |
| Osoite | Museokatu 7, HELSINKI |
| Toimiston puhelin | 0406547075 |
| Toimiston sähköposti |