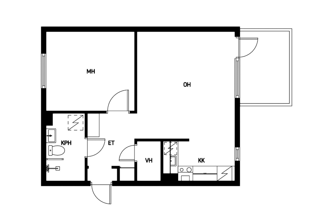
Kerrostalo 2h, kk, kph
Sepänniemenkatu 2, Ahtiala, Lahti
Vuokra
510 € / kk
Koko
50 m²
Vuosi
1993
Tilava ja kodikas kaksio rauhalliselta pienkerrostaloalueelta!
**HUOM.! Sovimme asunnon yksityisesittelyt hakijoiden kanssa erikseen.
Asuntohakemuksen kohteesta pääset täyttämään osoitteessa:
www.vuokratliikkuu.fi/hakemus
TAI Oikotieltä: Linkit kohdan ''Vuokraa tästä'' painikkeesta.
Valoisaan kaksioon on juuri uusittu lattia, joka tuo raikkaan ilmeen ja modernia tuntua.
Kompakti keittiö on suunniteltu arkea varten ja sieltä löytyy kaikki tarpeellinen ruoanlaittoon. Huoneet ovat väljät ja helposti sisustettavat, joten saat luotua kodista juuri oman näköisesi. Tilavaan kylpyhuoneeseen saat mahtumaan oman pesukoneen. Myös säilytystilaa on mukavasti, sillä eteisen kaapistot sekä erillinen vaatehuone pitävät arjen järjestyksessä.
Ahtiala on rauhallinen ja luonnonläheinen asuinalue, jossa yhdistyvät pientalovaltainen ympäristö ja pienkerrostalot. Alueella on hyvät lähipalvelut, kuten kauppoja ja koulu, ja arki sujuu vaivattomasti. Ulkoilumahdollisuudet ovat erinomaiset, ja järviluonto sekä lenkkipolut ovat aivan lähellä.
| Kohdenumero | 20781978 |
|---|---|
| Sijainti | Sepänniemenkatu 2, 15320 Lahti |
| Huoneistoselitelmä | 2h, kk, kph |
| Huoneita | Kaksio |
| Tyyppi | Kerrostalo (huoneisto, vuokranantaja) |
| Asuintilojen pinta-ala | 50 m² |
| Kerros | 2/2 |
| Vapautuminen | heti |
| Kohteen kunto | Tyydyttävä |
| Energialuokka | C2018. |
| Rakennusvuosi | 1993 |
| Käyttöönottovuosi | 1993 |
| Kyseessä alivuokraus | Ei |
| Kyseessä jälleenvuokraus | Ei |
| Vakuus | Yhden kuukauden vuokraa vastaava. |
| Vakuuden määrä | 510 € |
| Vuokrattu | Ei |
|---|---|
| Vuokra | 510 € / kk |
| Vesimaksu | 30 € / kk henkilöluvun mukaan |
|---|---|
| Muut maksut | Vesimaksu: 30,00 €/hlö/kk. Vuokralainen tekee oman sähkösopimuksen. |
| Lämmitysmuodot |
|
|---|
| Kalustettu | Ei |
|---|
| Keittiö | |
|---|---|
| Keittiön muu varustelu |
|
| Liesi |
|
| Jääkaappi ja pakastin |
|
| Keittiön lattia |
|
| Keittiön seinät |
|
| Kylpyhuone | |
|---|---|
| Kylpyhuoneen varustelu |
|
| Kylpyhuoneen lattia |
|
| Kylpyhuoneen seinät |
|
| Makuuhuone | |
|---|---|
| Makuuhuoneen lattia |
|
| Makuuhuoneen seinät |
|
| Olohuone | |
|---|---|
| Olohuoneen lattia |
|
| Olohuoneen seinät |
|
| Omistus | Vuokrattu |
|---|
| Nimi | Asunto Oy Lahden Sepänniemenkatu 2 |
|---|---|
| Taloyhtiössä sauna | Kyllä |
| Nimi | Hiltunen Linnea |
|---|---|
| Sähköposti | |
| Puhelin | 050 479 3335 |
| Yrityksen nimi | Neliöt Liikkuu LKV Oy Ab |
| Toimiston nimi | Neliöt Liikkuu LKV Oy Ab, Lahti |
| Yrityksen nimi | Neliöt Liikkuu LKV Oy Ab |
|---|---|
| Toimiston nimi | Neliöt Liikkuu LKV Oy Ab, Lahti |
| Osoite | Ahjokatu 4, Lahti |
| Toimiston puhelin | 0102481600 |
| Toimiston sähköposti |