Näkymät parvekkeelta sisäpihalle
Taloyhtiön pesutupa
Taloyhtiön kerhotila
Taloyhtiön sisäpiha
Merimaisemat heti talon edessä
Kaupunkipyöräparkki sekä bussipysäkki aivan vieressä
Näkymät parvekkeelta sisäpihalle
Taloyhtiön pesutupa
Taloyhtiön kerhotila
Taloyhtiön sisäpiha
Merimaisemat heti talon edessä
Kaupunkipyöräparkki sekä bussipysäkki aivan vieressä
Kerrostalo 1h+avok+kph+lp
Saaristolaivastonkatu 4, Kruunuvuorenranta, Helsinki
Vuokra
750 € / kk
Koko
30 m²
Vuosi
2021
Tyylikäs koti kolmannessa kerroksessa sisäpihan näkymin.
*HUOM; Asuntohakemuksen kohteesta pääset täyttämään osoitteessa
vuokratliikkuu.fi/hakemus
Sovimme asunnon yksityisesittelyt hakijoiden kanssa erikseen.
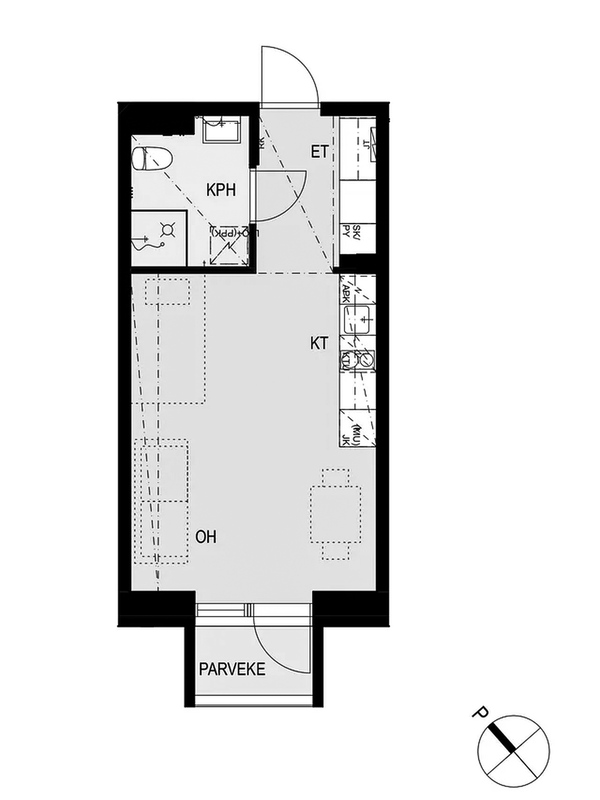
Tässä kodissa on avara pohjaratkaisu avokeittiön yhdistyessä muuhun oleskelutilaan. Keittiöstä löytyy kaikki tarvittavat varustelut kuten astianpesukone. Huoneen jatkeena on tilava lasitettu parveke, josta näkymät sisäpihalle. Kylpyhuone on moderni sekä tyylikäs ja tänne mahtuu hyvin oma pyykinpesukone. Säilytystilaa löytyy myös eteisen puolelta ja asuntoon kuuluu varastokomero.
Taloyhtiö on oikein viihtyisä ja hyvin hoidettu. Yhteisiä tiloja on kattavasti ja talosta löytyykin asukkaiden käyttöön mm. pesutupa, kerhotila sekä saunatilat. Sisäpiha on rauhallinen ja talon edestä löytyy bussipysäkki sekä kaupunkipyöräparkki. Talon edestä avautuu upeat merimaisemat.
Kruunuvuorenranta on rakentumassa loistavaksi paikaksi asua. Ympärivuotinen lauttaliikennekin on aloittanut kulkunsa Kruunuvuorenrannasta kaupunkiin, Kruununhakaan. Täällä et siis autoa tarvitse!
| Kohdenumero | 21127033 |
|---|---|
| Sijainti | Saaristolaivastonkatu 4, 00590 Helsinki |
| Huoneistoselitelmä | 1h+avok+kph+lp |
| Huoneita | Yksiö |
| Tyyppi | Kerrostalo (huoneisto, vuokranantaja) |
| Asuintilojen pinta-ala | 30 m² |
| Kerros | 3/5 |
| Vapautuminen | 01.01.2025 |
| Kunto | Asunto erinomaisessa kunnossa. |
| Kohteen kunto | Hyvä |
| Energialuokka | Ei lain edellyttämää energiatodistusta |
| Rakennusvuosi | 2021 |
| Käyttöönottovuosi | 2021 |
| Kyseessä alivuokraus | Ei |
| Kyseessä jälleenvuokraus | Ei |
| Vakuus | 1 kk vuokraa vastaava summa |
| Vakuuden määrä | 750 € |
| Vuokrattu | Ei |
|---|---|
| Vuokra | 750 € / kk |
| Vesimaksu | 25 € / kk henkilöluvun mukaan |
|---|---|
| Muut maksut | Vesimaksu tasataan vastaamaan todellista kulutusta. |
| Lämmitysmuodot |
|
|---|---|
| Hissi | Taloyhtiössä on hissi |
| Parveke | Kyllä |
| Kalustettu | Ei |
|---|---|
| Muut säilytystilat |
|
| Keittiö | |
|---|---|
| Keittiön muu varustelu |
|
| Liesi |
|
| Jääkaappi ja pakastin |
|
| Kylpyhuone | |
|---|---|
| Kylpyhuoneen kuvaus | allaskaappi, bidee suihku |
| Kylpyhuoneen varustelu |
|
| Sauna | |
|---|---|
| Saunan kuvaus | Taloyhtiön saunat x2, toinen katolla merinäköalalla ja suurella terassilla, toinen sisäpihaterassilla. |
| Kiuas |
|
| Parveke | |
|---|---|
| Parveke |
|
| Nimi | As Oy Helsingin Kruunuvuorenrannan Välke |
|---|---|
| Taloyhtiössä sauna | Kyllä |
| Isännöitsijän tiedot | Kiinteistö Tahkola |
| Taloyhtiössä |
|
| Nimi | Jokinen Julia |
|---|---|
| Sähköposti | |
| Puhelin | 050 467 5930 |
| Yrityksen nimi | Neliöt Liikkuu LKV Oy Ab |
| Toimiston nimi | Neliöt Liikkuu LKV Oy Ab |
| Yrityksen nimi | Neliöt Liikkuu LKV Oy Ab |
|---|---|
| Toimiston nimi | Neliöt Liikkuu LKV Oy Ab |
| Osoite | Museokatu 7, HELSINKI |
| Toimiston puhelin | 0406547075 |
| Toimiston sähköposti |