Erillinen keittiötila.
Pyykinpesukone kuuluu asuntoon.
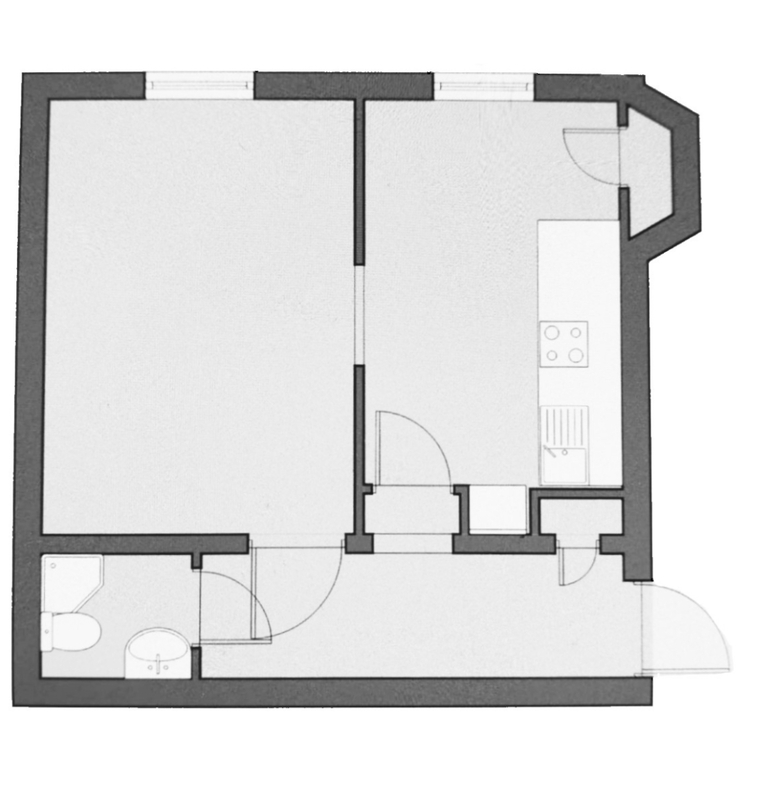
Pohjakuva.
Erillinen keittiötila.
Pyykinpesukone kuuluu asuntoon.
Pohjakuva.
Kerrostalo 1H+K+KPH
Eerikinkatu 23, Kamppi, Helsinki
Vuokra
900 € / kk
Koko
40 m²
Vuosi
1927
Valoa, tilaa ja leveät ikkunalaudat - muun muassa nämä elementit löytyvät tästä tunnelmallisesta kivitalokodista loistavalta sijainnilta Kampista!
Tämä koti huokuu kodikkuutta ja kivitalon henkeä. Tunnelmallinen vaalea lattia ja suuret ikkunat leveine ikkunalautoineen luovat kivitalon henkeä. Harmonisen vaalea värimaailman ansiosta asunto on helppo sisustaa mieleisekseen. Tilavassa huoneessa on hyvin tilaa niin sängylle kuin oleskeluun. Modernissa keittiössä on mukavasti kaappitilaa, astianpesukone ja siellä on oiva paikka ruokailuryhmälle ikkunan ääressä. Eteisen käytävän päässä on kulku laatoitettuun kylpyhuoneeseen, joka on varustettu pyykinpesukoneella.
Asunnon sijainti Kampissa on samaan aikaan toimiva ja viihtyisä. Asunnolta on kävelymatka niin keskustan laajoille palveluille ja liikenneyhteyksille kuin meren rantaan. Kampin ostoskeskus sekä metro- ja linja-autoasema vain 500 metrin päässä. K-Market Eerikinkatu vain noin 250 metrin päässä. Meren rantaan kävelet hetkessä ja sieltä lähtee ihastuttavat rantareitit niin Eiranrannan kuin Hietarannan suuntaan. Alueelta löytyy runsaasti ravintoloita ja kahviloita joka makuun.
Asunnossa on taloyhtiölaajakaista, jossa 10 megaa perusnopeutena.
HUOM! Mikäli kiinnostuit asunnosta, voit täyttää asuntohakemuksen täältä:
https://vuokratliikkuu.fi/hakemus
Esittelemme asuntoja vain hakemuksen tehneille.
| Kohdenumero | 21127450 |
|---|---|
| Sijainti | Eerikinkatu 23, 00180 Helsinki |
| Huoneistoselitelmä | 1H+K+KPH |
| Huoneita | Yksiö |
| Tyyppi | Kerrostalo (huoneisto, vuokranantaja) |
| Asuintilojen pinta-ala | 40 m² |
| Kerros | 1/null |
| Vapautuminen | heti |
| Kohteen kunto | Hyvä |
| Energialuokka | F2013. |
| Rakennusvuosi | 1927 |
| Käyttöönottovuosi | 1927 |
| Kyseessä alivuokraus | Ei |
| Kyseessä jälleenvuokraus | Ei |
| Vakuus | 2 kuun vuokra. |
| Vuokrattu | Ei |
|---|---|
| Vuokra | 900 € / kk |
| Muut maksut/lisätietoa maksuista | |
|---|---|
| Autopaikkamaksu | 80 € / kk |
| Vesimaksu | 22 € / kk oma mittari |
|---|---|
| Muut maksut | Vesimaksu tasataan vastaamaan todellista kulutusta. Autopaikat isännöitsijän kautta. |
| Lämmitysmuodot |
|
|---|---|
| Hissi | Taloyhtiössä on hissi |
| Antennijärjestelmä | Kaapeli-tv |
| Palvelut | |
|---|---|
| Palvelut | Asunnon sijainti Kampissa on samaan aikaan toimiva ja viihtyisä. Asunnolta on kävelymatka niin keskustan laajoille palveluille ja liikenneyhteyksille kuin meren rantaan. Kampin ostoskeskus sekä metro- ja linja-autoasema vain 500 metrin päässä. K-Market Eerikinkatu vain noin 250 metrin päässä. Meren rantaan kävelet hetkessä ja sieltä lähtee ihastuttavat rantareitit niin Eiranrannan kuin Hietarannan suuntaan. Alueelta löytyy runsaasti ravintoloita ja kahviloita joka makuun. |
| Kalustettu | Ei |
|---|---|
| Muut säilytystilat |
|
| Muu varustelu |
|
| Keittiö | |
|---|---|
| Keittiön muu varustelu |
|
| Liesi |
|
| Jääkaappi ja pakastin |
|
| Kylpyhuone | |
|---|---|
| Kylpyhuoneen kuvaus | Rättipatteri. |
| Kylpyhuoneen varustelu |
|
| Kaavoitustilanne |
|
|---|
| Nimi | Asunto Oy Eerikinkatu 23 |
|---|---|
| Isännöitsijän tiedot | Isännöintitoimisto REIM Pääkaupunkiseutu Oy Helsinki Iso Roobertinkatu 21 00120 Helsinki Isännöitsijä Noora Kauhanen 010 543 7245. |
| Huolto | huoltoyhtiö. Kiinteistönhoidon lisätiedot: Kotikatu Kamppi Laivasillankatu 14 00140 Helsinki |
| Tulevat remontit | 2026 Kiinteistön kuntoarvio 2026 Lukituksen uusiminen 2026 Pääoven ja takapihan rappujen ovien kunnossapitokartoitus 2026 Julkisivuraappauksien kuntotutkimus 2026 Porrashuoneiden maalaus |
| Taloyhtiössä |
|
| Nimi | Jokinen Julia |
|---|---|
| Sähköposti | |
| Puhelin | 050 467 5930 |
| Yrityksen nimi | Neliöt Liikkuu LKV Oy Ab |
| Toimiston nimi | Neliöt Liikkuu LKV Oy Ab |
| Yrityksen nimi | Neliöt Liikkuu LKV Oy Ab |
|---|---|
| Toimiston nimi | Neliöt Liikkuu LKV Oy Ab |
| Osoite | Museokatu 7, HELSINKI |
| Toimiston puhelin | 0406547075 |
| Toimiston sähköposti |